Квартира в Москве 5-комн., 330 м2, ID557537

300 000 000 ₽
3 588 010 $
3 071 181 €
909 091 ₽/м2
10 873 $/м2
9 307 €/м2
Малый Николопесковский пер, 4
Характеристики
  • Тип лота
    Квартира
  • Год постройки
    1998
  • Площадь
    330 кв.м
  • Этаж
    5
  • Этажей
    7
  • Количество комнат
    5
  • Количество спален
    4
  • Отделка
    C отделкой
  • Город
    Москва
Об объекте
Роскошная просторная 2-уровневая квартира площадью 330 кв.м. в элитном клубном доме в самом центре Старого Арбата рядом с театром Вахтангова.

В квартире выполнена дизайнерская отделка с применением дорогостоящих натуральных  материалов. 
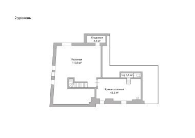
1 уровень: гостиная, столовая, кухня, холл, кабинет, гардеробная, гостевой санузел;
2 уровень:3 спальни со своими ванными комнатами, постирочная, холл.

Дополнительно на 3 уровне находится отдельное помещение площадью 30 кв.м., которое можно использовать как кабинет, студию, спортзал или дополнительную спальню.

Квартира полностью меблирована и оснащена качественной техникой и сантехникой от лучших мировых производителей.

В доме свой фитнес с бассейном. Многоуровневая охрана. В наличии 2 машино-места в подземном паркинге.
Расположение на карте
Похожие объекты

№ лота 561106

Просторная квартира без отделки в ЖК «Дом на Покровском бульваре»

315 м2
Казарменный пер, 3
  • Комнат

    6

  • Спален

    5

  • С/у

    2

  • Этаж

    3

320 000 000 ₽

№ лота 576004

Эксклюзивный 2-уровневый пентхаус в историческом особняке на Поварской улице

344.5 м2
Поварская ул, 26
  • Комнат

    6

  • Спален

    3

  • С/у

    4

  • Этаж

    5

295 000 000 ₽

№ лота 557537

Шикарная 2-уровневая квартира в клубном доме

330 м2
Малый Николопесковский пер, 4
  • Комнат

    5

  • Спален

    4

  • С/у

  • Этаж

    5

300 000 000 ₽
Поможем быстро и выгодно купить недвижимость
Препочтительный способ связи:
300 000 000 ₽
3 588 010 $
3 071 181 €
909 091 ₽/м2
10 873 $/м2
9 307 €/м2
Нажимая на кнопку вы соглашаетесь
с политикой конфиденциальности.

72624

https://c15d3839-d361-4fb8-9615-0c7a980d0169.selstorage.ru/iblock/f84/f84d4a947dd5f598a4d8a3300ead918b/560b962627775d4c3df8c6f1ab831bc8.jpg

Шикарная 2-уровневая квартира в клубном доме

Роскошная просторная 2-уровневая квартира площадью 330 кв.м. в элитном клубном доме в самом центре Старого Арбата рядом с театром Вахтангова. В квартире выполнена дизайнерская отделка с применением дорогостоящих натуральных  материалов. 1 уровень: гостиная, столовая, кухня, холл, кабинет, гардеробная, гостевой санузел;2 уровень:3 спальни со своими ванными комнатами, постирочная, холл.Дополнительно на 3 уровне находится отдельное помещение площадью 30 кв.м., которое можно использовать как кабинет, студию, спортзал или дополнительную спальню. Квартира полностью меблирована и оснащена качественной техникой и сантехникой от лучших мировых производителей. В доме свой фитнес с бассейном. Многоуровневая охрана. В наличии 2 машино-места в подземном паркинге.

300000000
BARNES MOSCOW
международное агентство элитной недвижимости, представленное в 20 странах мира.
107031
Россия
Москва
ул. Петровка, дом 19, стр. 1
+7 (495) 783-00-00